Musta puutalo Kaarinassa
Loppuvuodesta 2020 valmistunut musta CUBO Atrium rakentui Kaarinaan, Varsinais-Suomeen. Jenna, hänen miehensä ja perheen kolme lasta pääsivät muuttamaan jouluksi uuteen kotiin. Alkunsa rakennusprojekti sai perheen vanhan kodin jatkuvasti laajenevista keittiöremontin suunnitelmista. Lopulta keittiön remontointi vaihtui ideaan oman kodin rakentamisesta.
Tontti löytyi läheltä perheen nykyistä kotia. Kului vuosi ennen kuin suunnitelmista tuli konkreettisia, minkä jälkeen rakennusprosessi eteni vauhdikkaasti. Kaavamääräysten pohjalta lähdettiin miettimään ja etsimään perheen tarpeisiin ja toiveisiin sopivaa talomallia. Toiveena oli erityinen ja spesiaali pohjaratkaisu ja inspiraatiota etsittiin Pinterestistä. Aluksi mietinnässä oli L-mallinen talo, mutta kun vastaan tuli Teri-Talojen U-mallinen Cubo Atrium, ei muita vaihtoehtoja tarvinnutkaan enää miettiä.
Jenna ja hänen miehensä olivat alusta alkaen yhtä mieltä siitä, että heille oikea vaihtoehto on muuttovalmis talopaketti. Koska Teri-Talot eivät tarjoa täysin muuttovalmiita paketteja, heidän Turun edustajansa yhteistyökumppani toimitti muuttovalmiin Cubo Atrium -kodin Teri-Talojen valmistamista elementeistä. Koko prosessi sujui todella jouhevasti. Pariskunta on tyytyväinen apuun ja tukeen, jota he matkan varrella saivat.

Rakennusprosessi
Rakennusvaiheiden hahmottaminen oli ensikertalaisille haastavaa. Netistä lueskelu ja eri ihmisten kanssa keskusteleminen ei aina anna toivotunlaista lopputulosta. Kaikilla on omat kokemuksensa ja hyvin eriäviä mielipiteitä asioista, joten relevanttia tietoa aiheesta on vaikeaa löytää.
– Saimme Teri-Talojen edustajalta paljon apua ja tukea rakennusprosessin aikana, hän esimerkiksi suositteli taloon aurinkosuojalaseja ja perusteli meille hyvin niiden tarpeellisuuden, Jenna kertoo.
Tontti
Koska tontti oli jo valmiina, koko taloprojektin suunnittelu lähti liikkeelle sen pohjalta. Kaavamääräysten selvittelyn jälkeen alkoi sopivan ja mieleisen talomallin metsästys. Kun U-mallinen Teri-Talojen CUBO Atrium löytyi, sen sijoittelu tontille oli samantien selvää, koska atriumpihan haluttiin olevan metsään päin.
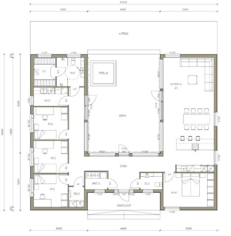
Pohjapiirros
Teri-talot on joustava talotoimittaja, mikä tarkoittaa käytännössä sitä, että jopa valmiita talomalleja on mahdollista muokata lähes rajattomasti asiakkaan toiveiden ja tarpeiden mukaisiksi. Tämän talon alkuperäisistä neliöstä jätettiin 20 neliötä pois ja pohjapiirrokseen tehtiin paljon myös muita muutoksia. Jenna ja hänen miehensä tulostivat alkuperäisen pohjapiirroksen ja merkkasivat siihen toivomansa muutokset, minkä pohjalta Teri-Talot teki heille ehdotelman ja jota vielä muutamaan kertaan muokattiin. Pariskunnalle jäi todella hyvä kokemus Teri-Taloista juurikin joustavuuden takia.
– Vaikka kaikki sujui hyvin, olisi arkkitehdin palkkaaminen projektin alussa varmasti hyödyllistä, koska hän pystyy katsomaan ilmansuunnat ja ottamaan kaikki toiveet huomioon. Jos aloittaisin projektin uudestaan, lähtisin siitä liikkeelle.

Budjetti
– Oli vaikeaa hahmottaa, paljonko taloprojekti kokonaisuudessaan tulee maksamaan. Budjetti kun määrittää projektin todella laajalti. Ensikertalaisella ei ole mitään käsitystä siitä, mitä kaikki tulee maksamaan jo ennen kuin talosta on edes mitään konkreettista pystyssä. Toivoisin, että tästä puhuttaisiin enemmän.
Teri-talojen kanssa kustannukset olivat selvät ja rakennuttaja osasi hyvin auttaa ja kertoa, mikä maksaa mitäkin ja mistä maksetaan extraa. Talon pystytys hoidettiin urakkasopimuksena, joten oli jo ennalta selvää, paljonko siitä maksetaan ja että kaikki extrakulut maksetaan erikseen.
Lue lisää budjetista ja talopaketin hinnasta
Kokonaisuus rakentuu pienistä yksityiskohdista
– Suosittelen kiinnittämään pieniinkin juttuihin huomiota, kokonaisuus nimittäin syntyy pienistä puroista. Kuvat kannattaa syynätä todella tarkkaan, että kaikki karmien yms. värit ovat varmasti halutunlaisia. Tähän kannattaa satsata paljon omaa aikaa.
Tähän Cubo Atrium -kotiin haluttiin kaikki mustana; karmeista ja ikkunoista lähtien. Teri-Talot hoiti oman osuutensa hyvin ja kaikki on kuten pitääkin. Jenna ja hänen miehensä ovat olleet todella tyytyväisiä. Teri-Talojen suunnittelijan kanssa pariskunta oli suunnitteluvaiheessa useasti yhteydessä sähköpostin ja puhelimen välityksellä. Suunnittelija teki muutokset todella nopeasti omista kiireistään huolimatta ja pari sai muutoskuvat aina viimeistään seuraavana päivänä.
– Talotoimitus stressasi eniten, mutta sekin helpotti projektin edetessä kun jotain konkreettista saatiin näkyviin, Jenna kertoo.

Hae inspiraatiota
Miksi Teri-talo?
Haluatko tarjouksen tai lisätietoja?
Katso mistä löytyy lähin edustajamme ja kysy lisää!


