Uniikki koti: Unelmien rantahuvila
Tällä hetkellä kakkoskotina toimiva merenrannalle rakennettu huvila on koukuttanut perheen siinä määrin, että sinne saatetaan muuttaa pysyvästi tulevaisuudessa lasten kasvatettua.
Tontti oli ostettu jo paljon aiemmin, mutta ulkomaan työkomennuksen vuoksi se oli jäänyt rakentamatta. Nyt perheen palattua takaisin Suomeen, päätettiin ryhtyä toimeen.
– Täällä sijaitsi aiemmin vanha mökki, mutta totesimme sen kuitenkin niin huonokuntoiseksi, että oli parempi purkaa se ja rakentaa uusi talo, perheen äiti Susanna kertoo.
Teri-Talot löytyi ystäväperheen kautta. Heille oli rakennettu vastikään omakotitalo ja kaikki oli sujunut enemmän kuin mainiosti. Näiden suositusten perusteella talotoimittajaksi valittiin Teri-Talot.

Perhe halusi kotinsa mahdollisimman valmiina. Teri-Talot toimittivat rungon ja ystäväperheen käyttämä, luotettavaksi tiedetty Kalle Gummeruksen paikallinen rakennusporukka rakensi kodin muuttovalmiiksi.
– Tämä rakennustapa on hyvin turvallinen. Mikäli myöhemmin ilmenee jotakin tai tarvitsemme apua rakentamiseen, voimme soittaa Kallelle ja kysyä neuvoa.
ESIKUVANA RENTO RANTAHUVILA
Inspiraatiota talon malliin haettiin selailemalla talovalmistajien sivustoja. Mieluisimmat mallit löytyivät ruotsalaisten yritysten valmistamista merenrantataloista ja niiden pohjalta omat toiveet alkoivat hahmottua tarkemmin. Teri-Talot ottivat suunnitelmista kopin ja talo sai lopullisen muotonsa.
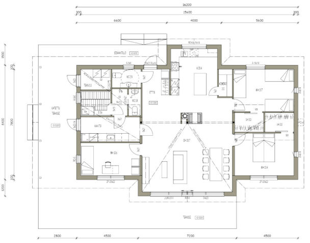
– Päädyimme pohjaratkaisuun, jossa keskellä on suuri ja avonainen oleskelutila ja sen päädyssä keittiö. Toiselle puolelle avotilaa sijoitettiin makuuhuoneet ja toiselle puolelle saatiin vierashuone, sekä kosteat tilat. Rakennus on suunniteltu tontin ja maiseman ehdoilla.

Avoimen tilan toisella puolella on vierasmakuuhuone omassa rauhassaan.
Edessä avautuu huikaiseva merinäköala, joka tietenkin haluttiin saada mahdollisimman hyvin osaksi kotia. Sijoittelussa ja rakennesuunnittelussa oli otettava huomioon myös naapuritontit. Siksipä suurimmat ikkunat keskitettiin talon päätyyn ja talon sivuikkunat jätettiin suhteellisen pieniksi.

Talon malli hahmottui merinäköalan ehdoilla. Talon keskiosassa on perheen yhteen kokoava, tilava oleskelualue, josta aukeavat liukulasiovet terassille.
Harjakattoisen talon malli on kekseliäs ja itse asiassa ristin muotoinen: suorakaiteen muotoiseen taloon tehtiin keskelle pitkät erkkerit molemmin puolin. Takapihalle päin työntyvässä ulokkeessa on sisällä keittiö. Meren puoleinen erkkeri taas maksimoi keskiosan oleskelutilojen avaruuden etenkin, kun tässä kohtaa sisäkatto myötäilee harjan muotoja ja huonekorkeus on korkeimmillaan nelisen metriä. Nämä erkkerit tuovat paitsi sisälle lisää neliöitä, niin myös samalla lisää yksityisyyttä tontille.

Keskitila on muita huonetiloja korkeampaa tilaa, sillä siinä hyödynnettiin sisäkaton muodot. Toisessa päädyssä, takan takana on keittiö.
![]()
Keittiö on Petra-keittiöiden mallistosta. Kuten muuallakin kodissa, niin myös tänne haluttiin kaikki mukavuudet, mikä mahdollistaa huvilalla oleskelun kodinomaisissa puitteissa.![]()
Susannan yksi unelma toteutettiin rakentamalla suuri ruokavarasto keittiön yhteyteen. Sen hyllyille saa mahtumaan siististi paljon tavaraa ja sinne saadaan kaikki harvemmin tarvittavat koneetkin säilöön.
Kattorakennetta jatkettiin toisella puolella hieman talon runkoa pidemmälle, jolloin sen alle jää suojaisa alue, jossa voi huoletta grillata hieman sateisellakin säällä. Huvilan beach house -tyylin viimeistelevät pienet, mutta sitäkin tärkeämmät detaljit, kuten jokaiseen ilmansuuntaan rakennetut yksittäiset, pyöreät ikkunat ja lähes ympäri talon rakennetut terassikannet.
YMPÄRIVUOTISEN KODIN EHDOILLA
Talon suunnittelua tehtiin alusta alkaen ajatuksella, että sitä käytetään ympäri vuoden ja mahdollisesti tulevaisuudessa siitä saattaa tulla perheen varsinainen koti.
Se huomioitiin rungon eristyksessä ja lämmityksen suunnittelussakin. Päälämmönlähteenä on ilmalämpöpumppu ja nopeaa lisälämpöä saadaan talon keskelle rakennetusta takasta.
– Takkaa lämmitetään etenkin talvella. Maalämpö olisi ollut ylimitoitettu ratkaisu tänne. Tulevaisuudessa voimme ehkä asentaa vielä aurinkopaneelit katolle.
Koska huvila sijaitsee vain nopean ajomatkan päässä varsinaisesta kodista, pistäydytään siellä arkenakin. Yksi tärkeimmistä toiveista olikin tehdä talosta käytännöllinen ja helppohoitoinen.
– Tänne rakennettiin riittävästi säilytystilaa, että talo olisi helposti siistinä pidettävä. Sinne ei ole kerrytetty myöskään liikaa tavaraa jolloin, kun lähdemme täältä kaupunkikotiin, se on nopea laittaa kuntoon. Ja sinne on aina ihana palata.

Huvila pidetään vapaana turhasta tavarasta, jolloin se on helppo pitää siistinä aina. Huonekaluissa ja tekstiileissö panostetaan tyylin ohella laatuun ja pitköiköisyyteen.
Kodin viehätys piilee sen rennossa tunnelmassa. Lisäksi siinä on kaikki modernit mukavuudet, jopa sauna sisätiloissa.
– Ensin ajattelimme, että rakennutamme rantasaunan. Mutta luovuimme ajatuksesta käytännön syistä. Talvella on mukavampi lämmittää talon yhteydessä olevaa saunaa. Ainoa asia, mitä täällä ei ole, on pesukone. Pyykit hoidetaan kaupunkikodissa.
![]()
Kodinhoitohuoneesta on sivuovi talon päädyn terassille.![]()
Sisäsauna ja toimivat suihkutilat ovat asioita, joita arvostetaan mökillä yllättävän paljon, etenkin talvisin. Pyyhekuivain kuivaa hetkessä kosteuden tekstiileistä. Pyyhe on Langøn-mallistosta.
Tämä kevät on vahvistanut perheen sidettä kakkoskotiin. Poikkeuksellinen aika vietettiin pääosin huvilalla turvassa ylimääräisiltä kontakteilta, mutta kuitenkin tarvittavan lähellä palveluita.
– Kun lapset kasvavat isommiksi, saatamme muuttaa tänne, sillä täältä on varsin lyhyt matka kaupunkiin. Ainakin tulemme viettämään täällä entistäkin enemmän aikaa!
![]()
Kodin tekstiilit ovat kaikki Langø home-merkkisiä. Niiden rento ja värikäs tyyli on täydellisen sopiva tänne. Lisäksi niiden materiaalina käytetty pellava ja villa ovat ajattomia, sekä kovaakin kulutusta ja aikaa kestäviä.![]()
Artikkeli ja kuvat: Suuri Talo Extra
(teksti Jutta Rissanen, kuvat Paula Osenius)

Hae inspiraatiota
Miksi Teri-talo?
Haluatko tarjouksen tai lisätietoja?
Katso mistä löytyy lähin edustajamme ja kysy lisää!








