Unique house: Verkviken
Moderni ja klassinen kohtaavat Verkvikenissä
Kaikki alkoi paperille tehdystä luonnoksesta. Siihen pohjautuen Teri-Talot piirsi Åsalle ja Markukselle heidän unelmiensa kodin. Talo vaati erityisesti suunniteltuja elementtejä, mutta se ei ollut ongelma, sillä Teri-Talot valmistaa kaikki elementit erikseen jokaiselle talolle. Jo lähes kymmenen vuoden ajan perhe on nauttinut upeasta kodistaan rinnetontin yläosassa Verkvikenissä, Pietarsaaressa.
Åsa suunnitteli taloja jo pienenä. Hän piirsi innokkaasti paikalliselta pankilta Depositalta saamaansa ruutuvihkoon taloja, jotka sisälsivät harrastushuoneita ja uima-altaita. Aikuisena prioriteetit hieman muuttuivat. Hän odotti toista lastaan miehensä Markuksen kanssa, kun he alkoivat etsiä taloa Pohjanmaalta. Ideana oli asua väliaikaisesti kahden huoneen asunnossa, kunnes he löytäisivät talon. Sen ei pitänyt kestää kauan.

– Emme löytäneet valmista taloa, joka olisi tuntunut oikealta. Lopulta asuimme siinä pienessä kaksiossa melkein kaksi vuotta. Kun muutimme pois, meillä oli yhden sijasta kaksi poikaa, muistelee Markus.
Alun perin pariskunnalla ei ollut aikomustakaan rakentaa taloa. Heistä ajatus koko rakentamisprosessista oli aina tuntunut vaikealta. Mutta sitten eteen tuli mahdollisuus ostaa hieno tontti heidän ystäviltään, asuinalueelta läheltä Åsan lapsuudenkotia.

– Useat tuttumme rakensivat taloja samaan naapurustoon, joten se tuntui hyvältä alueelta investoida. Kun olimme päättäneet rakentaa talon, tiesin, että haluan piirtää talon itse, sanoo Åsa.
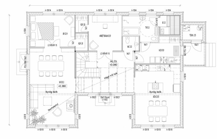
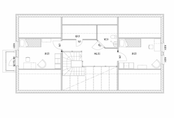
Hän suunnitteli kaksikerroksisen puutalon, jonka kokonaispinta-ala oli 194,5 neliömetriä. Åsa näyttää pohjapiirroksen alkuperäisen luonnoksen, jonka pari antoi arkkitehdille tarkasteltavaksi ja kommentoitavaksi.
– Olen iloinen, että palkkasimme arkkitehdin, koska häneltä saimme useita hyviä ideoita, mukaanlukien talon sisäänkäynnin ja salin. Hän muutti portaat niin, että ensimmäisessä kerroksessa oleva lattiapinta muotoiltiin kahdeksikon muotoon. Se oli hyvä ratkaisu, johon olemme olleet tyytyväisiä, sanoo Åsa.

Valitsimme hyvän palvelun ja joustavuuden
Pari kysyi tarjouksia useilta talovalmistajilta, mutta päätyi Teri-Taloihin. Valinta perustui lähinnä myyjältä saatuun ystävälliseen ja henkilökohtaiseen palveluun sekä joustavuuteen, jota Teri-Talot tarjosi. Åsan piirrustukset vaativat erityisiä ratkaisuja, mutta se ei ollut koskaan ongelma.
– Surffasin paljon ruotsalaisten talovalmistajien sivuilla ja pidin erityisesti talomalleista, joissa oli ikkunasyvennykset ja lyhyet räystäät. Jotkut paikalliset valmistajat, joilta pyysimme tarjousta, olivat skeptisiä tämäntyyppiselle katolle ja ikkunoille, mutta Teri-Talot pystyivät toteuttamaan ne, sanoo Åsa.

Teri-Talot teki lopulliset piirrustukset ja toimitti elementit juhannusviikolla 2009. Pari palkkasi talon pystytykseen paikallisen rakennusyhtiön Jake Rakennus Byggin, jonka kanssa yhteistyö toimi myös erinomaisesti. Helmikuussa 2010 he vihdoin muuttivat ja menivät samana vuonna naimisiin.
– En muista rakentamisprosessia vaikeana aikana, kaikki meni todella sujuvasti vaikka meillä oli pieniä lapsia. En ole yhtään kiinnostunut sisustussuunnittelusta, joten käytännössä se meni niin, että Åsa ehdotti asioita ja minä sanoin kyllä. Niin se yleensä menee meidän avioliitossamme ja se toimii hyvin, sanoo Markus ja nauraa.

Mikä tekee talosta kodin?
Jokainen, joka astuu taloon pääoven kautta, voi heti nähdä talon läpi molempiin suuntiin. Suorat näköalat ovat jotain, minkä kanssa Åsa oli varovainen suunnittelussa. Hän halusi erottaa keittiön ja olohuoneen toisistaan ja sijoittaa olohuoneen niin, että iltapäivällä ja illalla aurinko kurkistaa sisään. Kodin pitäisi olla ajaton ja klassinen, mutta tuntuu myös modernilta kun koti on avara ja valoisa.

– Minulle on tärkeää, että talo todella tuntuu kodilta, ei persoonattomalta näyttelytalolta asuntomessuilla. Kodin pitää olla houkutteleva paikka, jossa voit rauhoittua ja seurustella. On haastavaa saada kodin lämpöä ihan uuteen taloon, se tulee ajan myötä kun talossa vietetään paljon aikaa.
Åsa on todella onnistunut saamaan taloon kodin tuntua, vaikka sisustuksessa on paljon valkoista ja tyylikkyyttä. Ehkä taulut tekevät sen. Julisteet, taide ja valokuvat, jotka vievät vierailijan mielenkiinnon. Tai sitten yksityiskohdat. Åsan heikkouksia ovat Tanskalaiset designkalusteet ja lamput. Värikkäät tekstiilit rikkovat valkoista mielenkiintoisella tavalla. Myös kirjakokoelma vaikuttaa paljon talon kodikkuuteen.

– Kaikkialla sisätiloissa on samoja valkoisen sävyjä. Siitä vain tuli sellainen, meillä ei ollut aikaa miettiä niin paljon värejä siinä elämäntilanteessa mitä elimme rakennusvaiheessa. Mutta olemme olleet tyytyväisiä valkoiseen. Erilaisia variaatioita on mahdollista luoda tekstiileillä. Olen oikea tyynyfani, Åsa sanoo.

20 prosenttia kodista saa olla ruma
Inspiraatiota Åsa löytää useimmiten sisustuslehdistä, joista hän nauttii perjantai-iltaisin irtokarkkipussin kanssa. Erään sisustuslehden artikkelista hän luki kerran, että 20 prosenttia kodista saa olla ruma. Siitä lauseesta on tullut hänen mottonsa sisustustöissä ja se tuo myös erinomaisesti lohtua, jos hän tuntee itsensä alakuloiseksi jossain huoneessa.
– Jos haluat saada henkilökohtaisen kosketuksen kotiin, sen täytyy olla hieman sotkuinen ja ruma. Tykkään yhdistää hyvännäköistä johonkin hieman pelottavaan. Koti ei saa olla liian täydellinen ja stailattu pienimpiä yksityiskohtia myöten, koska silloin siitä tulee epäkiinnostava, sanoo Åsa.


Hae inspiraatiota
Miksi Teri-talo?
Haluatko tarjouksen tai lisätietoja?
Katso mistä löytyy lähin edustajamme ja kysy lisää!
