Käytämme evästeitä tarjotaksemme paremman käyttökokemuksen ja henkilökohtaista palvelua. Suostumalla evästeiden käyttöön voimme kehittää entistä parempaa palvelua ja tarjota sinulle kiinnostavaa sisältöä. Sinulla on hallinta evästeasetuksistasi, ja voit muuttaa niitä milloin tahansa. Lue lisää evästeistämme.
Nämä evästeet ovat välttämättömiä, jotta verkkosivumme toimisi oikein, esimerkiksi suojaustoiminnot tai evästeiden suostumusasetukset.
Mieltymysevästeiden avulla sivusto tallentaa tietoja, jotka muuttavat sivuston käyttäytymistä ja ulkonäköä, kuten kielivalintoja tai käyttäjän sijainteja.
Parantaaksemme verkkosivuamme keräämme nimettömästi tietoja tilastollisiin ja analyyttisiin tarkoituksiin. Näiden evästeiden avulla voimme esimerkiksi seurata verkkosivumme tiettyjen sivujen käyntien määrää tai kestoa, mikä auttaa meitä optimoimaan käyttäjäkokemusta.
Nämä evästeet auttavat meitä mittaamaan ja optimoimaan markkinointitoimiamme.
Autotalli on etenkin Suomen keleillä käytännöllinen auton säilytysratkaisu. Autotalli tarjoaa suojaisan säilytystilan auton lisäksi ulkotyökaluille, harrastusvälineille ja tilan monenlaiseen nikkarointiin. Myös auton korjailu ja huoltaminen on huomattavasti mukavampaa autotallissa. Oletko jo miettinyt, minkälaisen autotallin tarvitset. Lue alta, mitä hankinnassa kannattaa ottaa huomioon.
Autotalli on olennainen osa omakotitaloa. Useimmat autotallit ovat kahden auton talleja, ja niissä on autopaikkojen lisäksi myös säilytystilaa. Lähtökohtaisesti kannattaa miettiä, millaiseen käyttöön autotallia tarvitsee? Onko tarve myös kylmävarastolle ja työkaluille? Olisiko tallissa syytä olla tilaa auton säilytyksen lisäksi auton ruuvailuun tai harrasteprojektien toteutukseen? Kuten kodeissakin, autotallien käyttötarkoitus vaihtelee käyttäjästä toiseen, eikä sitä kannatakaan miettiä pelkästään auton säilytykseen soveltuvana tilana.
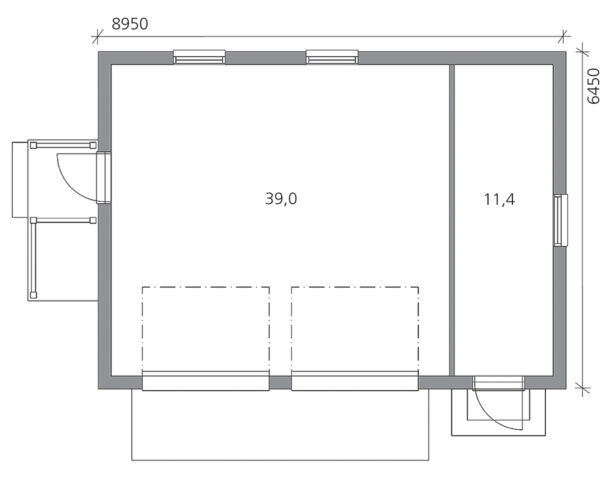
Lähtökohtaisesti autotallin tilavuutta kannattaa lähteä miettimään autojen määrän perusteella. Yksi auto autotallissa tarvitsee tilaa noin 3 x 6 metriä ja kaksi autoa tuplasti, 6 x 6 metriä. Pienemmälläkin leveydellä saattaa selvitä, mutta se riippuu halutusta käyttömukavuudesta ja -tarkoituksesta. Autotallille on syytä miettiä pinta-alan lisäksi tarvittava korkeus, mikäli käytössä on (tai voi jatkossa olla) pakettiauto tai maasturi. Suuren pakettiauton kanssa korkeutta voidaan tarvita jopa kolme metriä, pituutta enemmän kuin kuusi metriä. Autotallia suunnitellessa on muistettava, että sen rakentaminen vaatii rakennusluvan, ja rakentaminen kuluttaa tontin rakennusoikeutta siinä missä asuinrakennuskin.
Teri-Taloilla on kuutta eri autotallipakettia: Ida, Johanna, Matilda, Moderna, Victoria ja Carolina. Niiden tyylit vaihtelevat siinä missä kotiemmekin. Olennainen osa autotallin valinnassa on, että se sopii ympäristöönsä ja palvelee käyttäjiään. Ida ja Johanna ovat yksinkertaisen tyylikkäitä ja käytännöllisiä, kun taas Matilda on romanttisen rauhallinen ja arvokas, vanhoista huviloista vaikutteensa saanut mallisto. Moderna taas on tyypiltään nimensä mukaisesti moderni, Victoria enemmänkin uljas ja edustava ja Carolina viehättävä, maalaisromanttinen ja tyylikäs. Tyylin valintaan vaikuttaa käytännöllisten puolten lisäksi minkälaiseen ympäristöön autotalli halutaan rakentaa, ja haluttu autotallin hinta. Hinnoittelu riippuu autotallipaketin räätälöinnistä, mikä luonnollisesti tehdään asiakkaan toiveiden mukaan, kuten talopaketeissammekin.
Teri-Taloilla on pitkät perinteet ja runsaasti kokemusta puutalorakentamisesta. Myös autotallit kuuluvat valikoimaamme laadukkaiden talojen ohella. Taloosi sopivan autotallipaketin saat omien toiveidesi mukaisesti räätälöitynä. Uskomme käsityön perinteisiin ja arvostamme laatua – kaikilla taloelementeillämme on 10 vuoden laatutakuu. Asiantuntevat myyjämme, suunnittelijamme ja asentajamme toteuttavat mahdollisimman joustavasti ja vaivattomasti sen, mitä haluat ja tarvitset. Selaa valikoimaa, ota yhteyttä ja kerro meille visiosi ja tarpeesi!
Katso mistä löytyy lähin edustajamme ja kysy lisää!