Käytämme evästeitä tarjotaksemme paremman käyttökokemuksen ja henkilökohtaista palvelua. Suostumalla evästeiden käyttöön voimme kehittää entistä parempaa palvelua ja tarjota sinulle kiinnostavaa sisältöä. Sinulla on hallinta evästeasetuksistasi, ja voit muuttaa niitä milloin tahansa. Lue lisää evästeistämme.
Nämä evästeet ovat välttämättömiä, jotta verkkosivumme toimisi oikein, esimerkiksi suojaustoiminnot tai evästeiden suostumusasetukset.
Mieltymysevästeiden avulla sivusto tallentaa tietoja, jotka muuttavat sivuston käyttäytymistä ja ulkonäköä, kuten kielivalintoja tai käyttäjän sijainteja.
Parantaaksemme verkkosivuamme keräämme nimettömästi tietoja tilastollisiin ja analyyttisiin tarkoituksiin. Näiden evästeiden avulla voimme esimerkiksi seurata verkkosivumme tiettyjen sivujen käyntien määrää tai kestoa, mikä auttaa meitä optimoimaan käyttäjäkokemusta.
Nämä evästeet auttavat meitä mittaamaan ja optimoimaan markkinointitoimiamme.
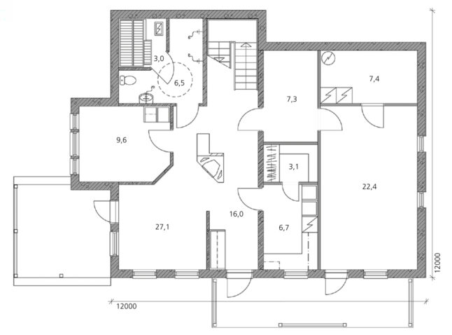
Komea rinneratkaisu.
Johanna on saatavilla juuri sen kokoisena ja sellaisella pohjalla kuin haluat. Muistathan myös, että mikäli löydät Johanna -mallistosta sinua miellyttävän pohjaratkaisun, voit aina valita talon ulkonäön mielesi mukaan!
Katso mistä löytyy lähin edustajamme ja kysy lisää!