Cubo 188

Cubo-malliston arkkitehtuuri edustaa tyyliltään modernia rakentamista. Jokaisessa Cubo-kodissa on avara yhtenäinen oleskelutila, johon luonnonvalo tulvii suurista puutarhaan avautuvista ikkunoista.

Muokkaa Cuboa mielesi mukaan!

Cubo on saatavilla juuri sen kokoisena ja sellaisella pohjalla kuin haluat. Muistathan myös, että mikäli löydät Cubo-mallistosta sinua miellyttävän pohjaratkaisun, voit aina valita talon ulkonäön mielesi mukaan!

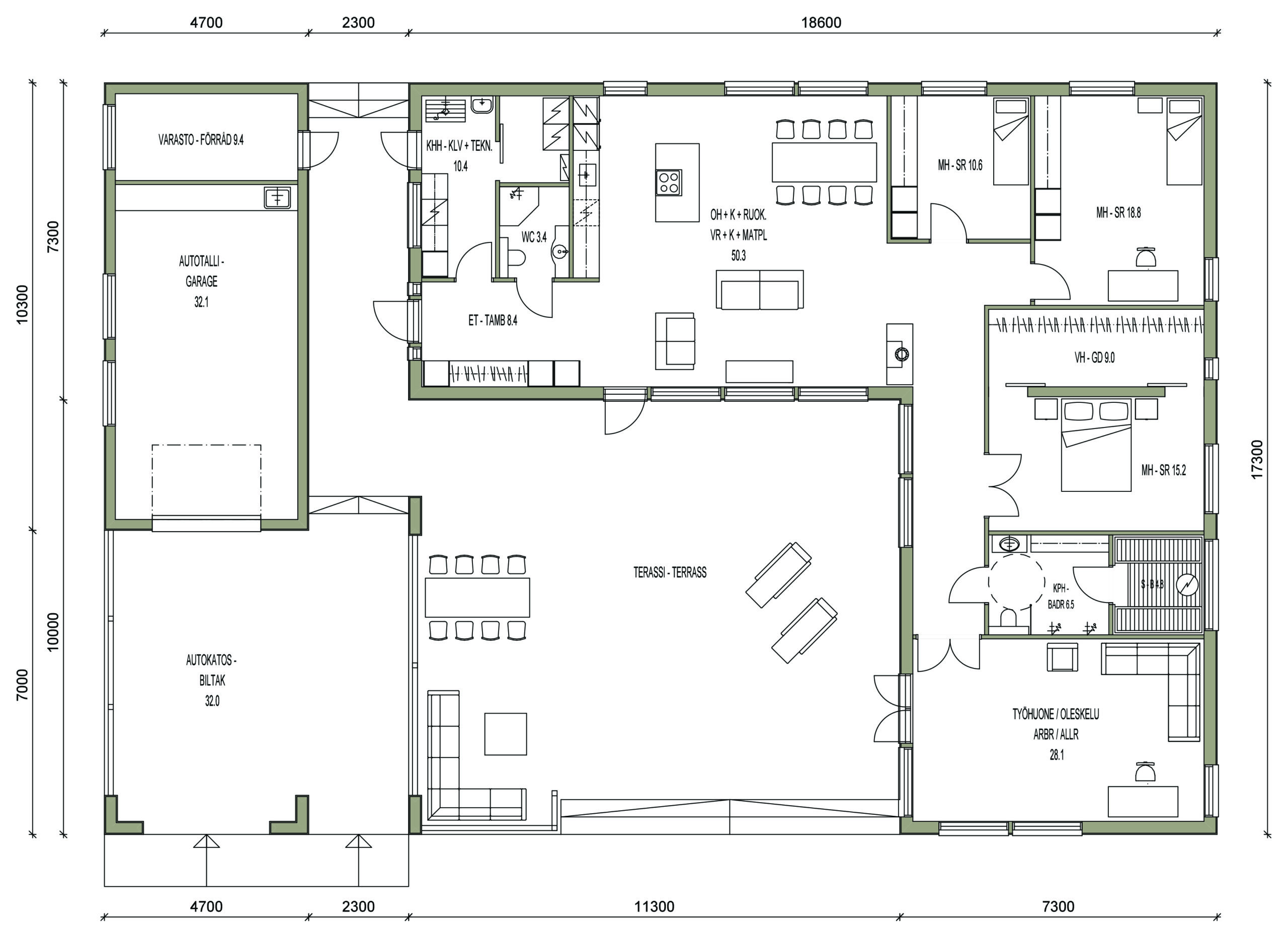
Pohjapiirrokset

Ota yhteyttä

Haluatko tietää tarkemmin, miten käsittelemme henkilötietoja? Tutustu tietosuojaperiaatteisiimme.

  • This field is for validation purposes and should be left unchanged.

Kaikki Cubo kuvat